Archivo de la etiqueta: vivienda en esquina

ULTIMA VIVIENDA A LA VENTA: TIPO DUPLEX EN ESQUINA CON BUHARDILLA – COOPERATIVA MORA

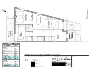
DUPLEX EN ESQUINA  ORIENTACIÓN SURESTE A LA VENTA – SITUADO EN CHURRA, MURCIA.

El duplex dispone de 4 habitaciones, cocina independiente, salón comedor 3 baños, terrazas en planta baja y primera planta, garaje amplio y buhardilla.

Situado en carretera de Churra esquina con la avenida Francisco Jiménez Ruíz.

Para mas información pueden contactar conmigo a través de un comentario en esta página web o llamándome al telf. 637434931

PRIMERA PLANTA DUPLEX ESQUINA

GARAJEPLANTA BAJA