Diseño gráfico e infografías,Grafik design und 3D Bilder,Graphic design and 3d models,News,portfolio,Projects 2026 PROPUESTA DE MATERIALIZACIÓN DE PALACETE ÁRABE EN REUS, TARRAGONA 9 febrero, 2026 Juan Antonio Jaén Mayor Deja un comentario
Direcciones de obra,Edificación,News,Projects 2026 FACHADA PRINCIPAL EN CONSTRUCCIÓN DE LA ASISTENCIA TÉCNICA DE VIVIENDA UNIFAMILAR EN PARCELA EN ESQUINA, SENEGAL. Imagen 9 febrero, 2026 Juan Antonio Jaén Mayor Deja un comentario
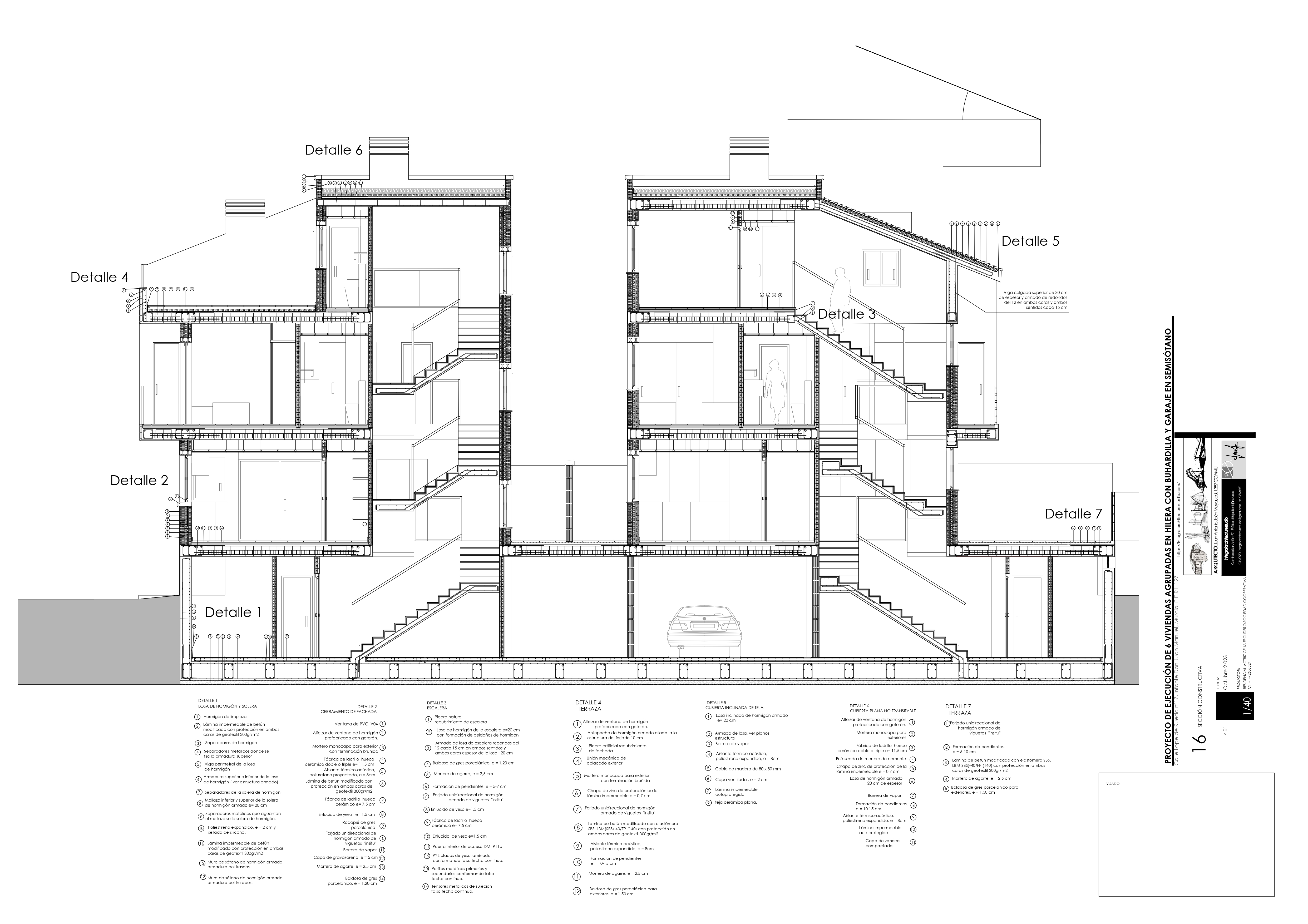
portfolio PROPUESTA DE MATERIALIZACIÓN – INFOGRAFÍA FACHADA SUR – EDIFICIO EN CONSTRUCCIÓN – BARRIO INFANTE DON JUAN MANUEL, MURCIA Imagen 27 enero, 2026 Juan Antonio Jaén Mayor Deja un comentario
portfolio PROPUESTA DE MATERIALIZACIÓN – INFOGRAFÍA VIVIENDA UNIFAMILIAR AISLADA – CHORRICO IV – MOLINA DE SEGURA Imagen 25 enero, 2026 Juan Antonio Jaén Mayor Deja un comentario
portfolio PROPUESTA DE MATERIALIZACIÓN – INFOGRAFÍA FACHADA NORTE – EDIFICIO EN CONSTRUCCIÓN – BARRIO INFANTE DON JUAN MANUEL, MURCIA Imagen 25 enero, 2026 Juan Antonio Jaén Mayor Deja un comentario
Building construction,EDIFICACIÓN,Edificación,portfolio,Projects 2026 SECCIÓN CONSTRUCTIVA VIVIENDA UNIFAMILIAR AISLADA – URBANIZACIÓN CHORRICO IV – MOLINA DE SEGURA MURCIA Imagen 16 enero, 2026 Juan Antonio Jaén Mayor Deja un comentario
Building construction,Diseño gráfico e infografías,Grafik design und 3D Bilder,Graphic design and 3d models,News,portfolio,Projects 2026 NUEVO PLAN DE BLOQUE RESIDENCIAL CON BAJO COMERCIAL EN TOUBA, SENEGAL Imagen 1 enero, 2026 Juan Antonio Jaén Mayor Deja un comentario
Building construction,Edificación,Gebäudebau,portfolio,Projects 2026 CONTINUAMOS OBRA EN EL BARRIO DEL INFANTE DON JUAN MANUEL, MURCIA 30 diciembre, 2025 Juan Antonio Jaén Mayor Deja un comentario
portfolio PROPUESTA DE MATERIALIZACIÓN EDIFICIO EN CONSTRUCCIÓN – 6 VIVIENDAS AGRUPADAS EN DOBLE HILERA EN EL BARRIO INFANTE JUAN MANUEL DE MURCIA 4 diciembre, 2025 Juan Antonio Jaén Mayor Deja un comentario Fachada Sur – Calle Lope de Rueda.
portfolio PROPUESTA DE MATERIALIZACIÓN DE BLOQUE RESIDENCIAL EN TOUBA – SENEGAL 28 noviembre, 2025 Juan Antonio Jaén Mayor Deja un comentario Infografía de bloque residencial