Direcciones de obra,Edificación,News,Projects 2026 FACHADA PRINCIPAL EN CONSTRUCCIÓN DE LA ASISTENCIA TÉCNICA DE VIVIENDA UNIFAMILAR EN PARCELA EN ESQUINA, SENEGAL. Imagen 9 febrero, 2026 Juan Antonio Jaén Mayor Deja un comentario
Building construction,EDIFICACIÓN,Edificación,portfolio,Projects 2026 SECCIÓN CONSTRUCTIVA VIVIENDA UNIFAMILIAR AISLADA – URBANIZACIÓN CHORRICO IV – MOLINA DE SEGURA MURCIA Imagen 16 enero, 2026 Juan Antonio Jaén Mayor Deja un comentario
Building construction,Edificación,Gebäudebau,portfolio,Projects 2026 CONTINUAMOS OBRA EN EL BARRIO DEL INFANTE DON JUAN MANUEL, MURCIA 30 diciembre, 2025 Juan Antonio Jaén Mayor Deja un comentario
Building construction,Civil engineering,Direcciones de obra,Edificación,Gebäudebau,News ASISTENCIA TÉCNICA EN EL PROYECTO Y CONSTRUCCIÓN DE VIVIENDA UNIFAMILIAR EN PARCELA EN ESQUINA EN SENEGAL. 2 enero, 2025 Juan Antonio Jaén Mayor Deja un comentario Imagen de la fachada principal en construcción: Imagenes de la escalera monumental en construcción:
Building construction,Edificación,Gebäudebau,News,portfolio,Projects 2023 SECCIÓN CONSTRUCTIVA DE 6 VIVIENDAS AGRUPADAS EN HILERA 3 A 3 CON BUHARDILLA Y GARAJE EN SEMISÓTANO – SITO EN INFANTE, MURCIA 1 noviembre, 2023 Juan Antonio Jaén Mayor Deja un comentario Sección constructiva del proyecto de ejecución de 6 viviendas agrupadas en hilera 3 a 3 con buhardilla y garaje en semisótano, situadas en el barrio Infante don Juan Manuel de Murcia.
Edificación,Gebäudebau,News,Projects 2023 ANTEPROYECTO DE REHABILITACIÓN DE VIVIENDA EN LA HUERTA DE ALGEZARES 17 mayo, 2023 Juan Antonio Jaén Mayor Deja un comentario Portada del anteproyecto:
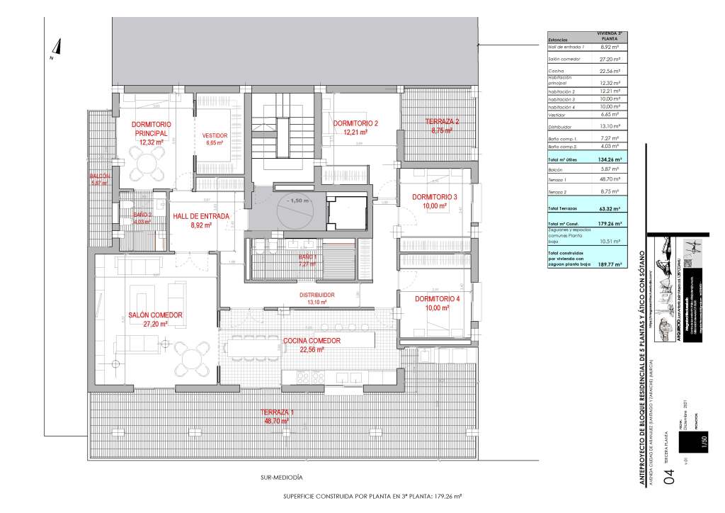
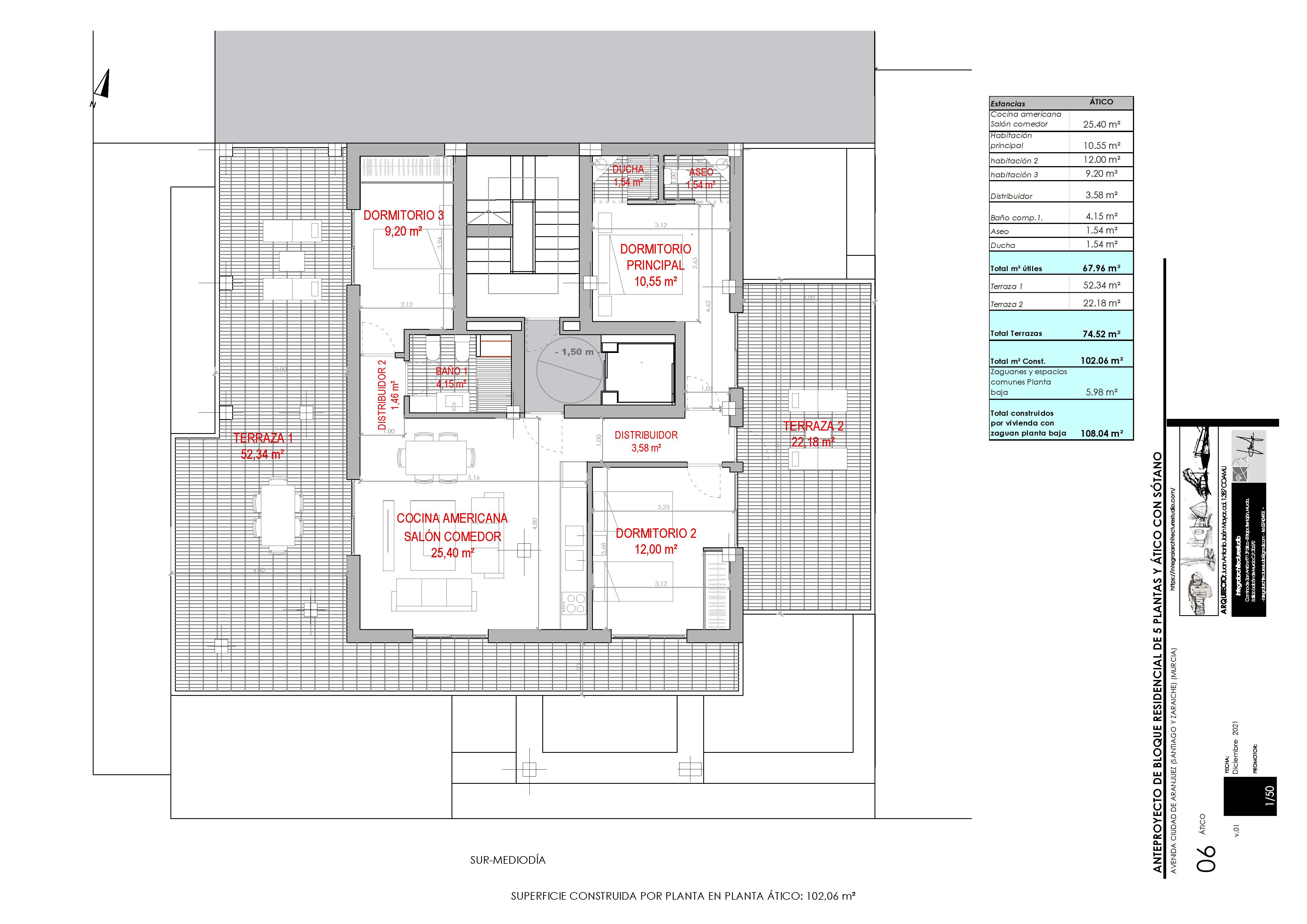
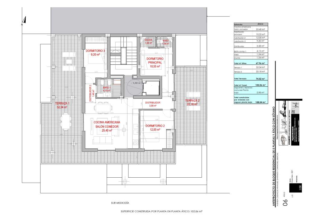
Diseño gráfico e infografías,Edificación,News,portfolio,Projects 2022 ANTEPROYECTO DE 6 VIVIENDAS AGRUPADAS TIPO DUPLEX CON BUHARDILLA Y GARAJE EN EL INFANTE (MURCIA) CALLE LOPE DE RUEDA 25 junio, 2022 Juan Antonio Jaén Mayor 14 comentarios Infografía exterior de la fachada de las viviendas. Planta semisótano general: Planta baja general: Primera planta general: Planta buhardillas: Ficha vivienda nº1: Ficha vivienda nº2: Ficha vivienda nº3: Ficha vivienda nº4: Ficha vivienda nº5: Ficha vivienda nº6:
Direcciones de obra,Edificación,Gebäudebau,News,portfolio,Projects 2019 TERMINANDO VIVIENDA ADOSADA EN CEUTÍ 18 mayo, 2022 Juan Antonio Jaén Mayor Deja un comentario Imagen de la vivienda antes de la entrada de los pintores y a falta de colocar cristales en barandillas.
Building construction,Direcciones de obra,Edificación,News,portfolio,Projects 2022 VISITA DE OBRA BLOQUE RESIDENCIAL DE 6 PLANTAS Y 2 SÓTANOS EN AVENIDA PRÍNCIPE DE ASTURIAS (MURCIA) 22 abril, 2022 Juan Antonio Jaén Mayor Deja un comentario Fachada exterior oeste Terminada. Fachada exterior sur terminada. Fachada exterior vista sureste terminada. Fachada exterior este terminada. Interior viviendas 1. Interior viviendas 2. Interior viviendas 3. Interior viviendas 4. Interior viviendas 5. Sótano -1 Sótano -2 di
Building construction,Direcciones de obra,Edificación,Gebäudebau,News VISITA DE OBRA VIVIENDA ADOSADA EN CEUTI 1 abril, 2022 Juan Antonio Jaén Mayor Deja un comentario Imagen fachada exterior Imagen salón comedor Imagen distribuidor interior Imagen patio posterior Imagen desde la doble altura sobre el salón comedor Imagen de la escalera de acceso a primera planta Imagen de la terraza de primera planta