Building construction,EDIFICACIÓN,Edificación,portfolio,Projects 2026 SECCIÓN CONSTRUCTIVA VIVIENDA UNIFAMILIAR AISLADA – URBANIZACIÓN CHORRICO IV – MOLINA DE SEGURA MURCIA Imagen 16 enero, 2026 Juan Antonio Jaén Mayor Deja un comentario
Building construction,Edificación,Gebäudebau,News,portfolio,Projects 2021 SECCIÓN CONSTRUCTIVA DE VIVIENDA UNIFAMILIAR ADOSADA EN ESQUINA. 19 diciembre, 2021 Juan Antonio Jaén Mayor Deja un comentario Sección constructiva de vivienda. Escala 1/30:
Edificación,Projects 2019,Proyectos SECCIÓN CONSTRUCTIVA – BLOQUE RESIDENCIAL DE 9 VIVIENDAS – AVENIDA PRINCIPE DE ASTURIAS – MEDIANO DURAN SOCIEDAD COOPERATIVA 19 abril, 2019 Juan Antonio Jaén Mayor Deja un comentario Sección constructiva del proyecto de ejecución del bloque residencial de 9 viviendas con 26 plazas de garaje y 10 trasteros.
Building construction,Edificación,Gebäudebau,portfolio,Projects 2017,Proyectos SECCIÓN CONSTRUCTIVA DE LA ZONA COMERCIAL Y VIVERO DE AGROQUÍMICOS VIGUERAS S.L. 17 enero, 2018 Juan Antonio Jaén Mayor Deja un comentario Aquí presentamos la sección constructiva de la zona comercial y del vivero que actualmente esta en obra de agroquímicos Vigueras s.l.
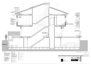
Building construction,Edificación,Gebäudebau,News,portfolio,Projects 2017 SECCIÓN CONSTRUCTIVA – VIVIENDA AGRUPADAS EN HILERA 2 noviembre, 2017 Juan Antonio Jaén Mayor Deja un comentario Sección constructiva del proyecto de ejecución de 6 viviendas agrupadas en hilera con garaje y trastero.
Building construction,Edificación,Gebäudebau,News,Projects 2016 SECCIÓN CONSTRUCTIVA DEL PROYECTO DE EJECUCIÓN DE 10 VIVIENDAS AGRUPADAS EN HILERA CON GARAJE Y TRASTERO 29 mayo, 2016 Juan Antonio Jaén Mayor Deja un comentario Sección Constructiva de las viviendas: